Bürgerhaus
UmfangNeubau als Erweiterung
Ort Burghausen
Leistung Planungsgutachten
Status Konzept
Bauherr Stadt Burghausen
Größe 1.500 m²
Landschaftsarchitekt Wolfgang Wagenhäuser BDLA, Töging
Visualisierungen Multidesignstudio mw2, München

Grundlagen
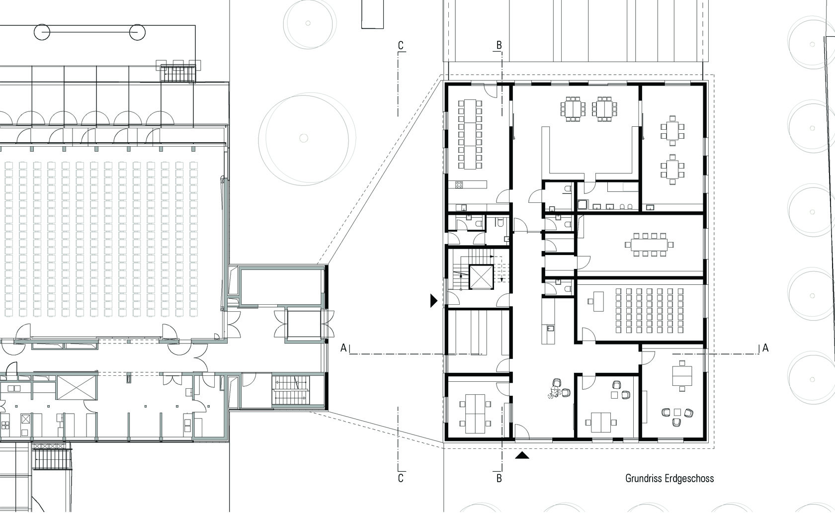
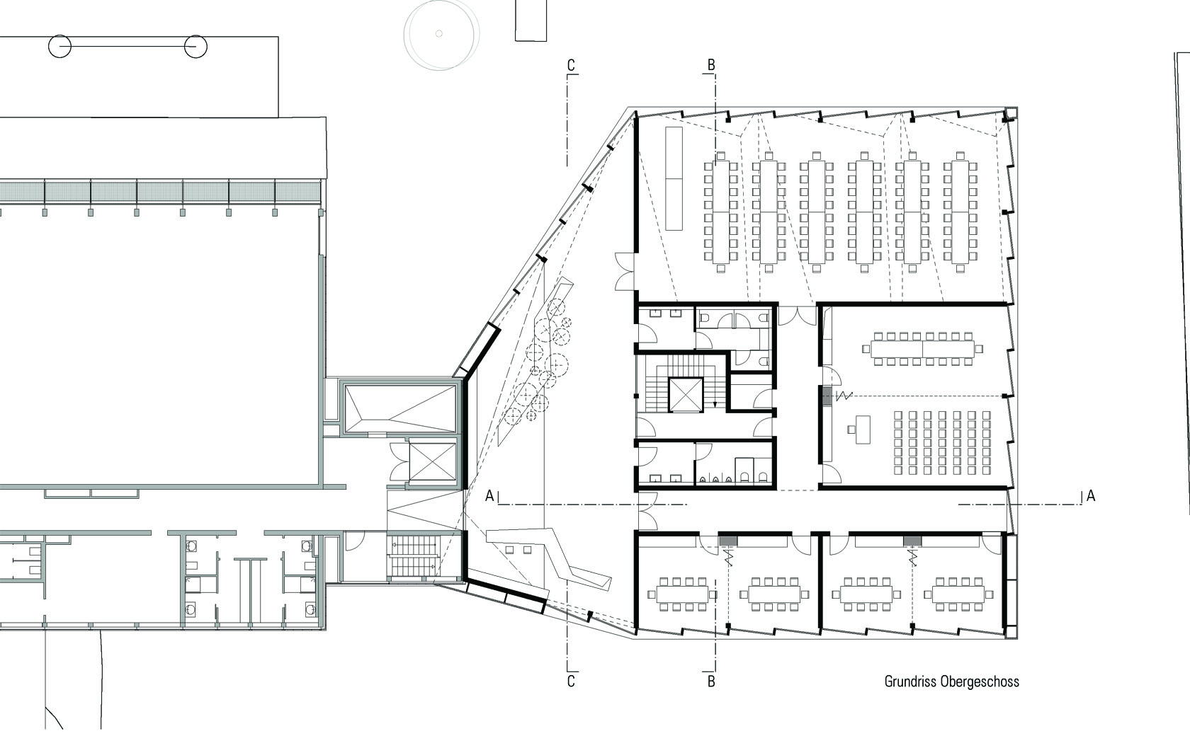
Auf dem nördlichen Grundstück, zwischen Sparkasse, Tiefgaragenzufahrt, Einfamilienhaus und Nebelgarten, soll eine Erweiterung des Bürgerhauses realisiert werden, für das Haus der Familie mit seinem Kindernest, einen mittleren Saal inklusive erforderlicher Infrastruktur und das Jugendbüro. Der zusätzliche Saal und das Jugendbüro sollen einen direkten Anschluss an das bestehende Bürgerhaus erhalten, wobei die Anlieferung nach wie vor im Erdgeschoss am nördlichen Treppenhaus erfolgen muss. Die Anbindung kann somit nur im Obergeschoss erfolgen.
Konzept
Das Haus der Familie mit dem Kindernest wird im Erdgeschoss auf einer Ebene organisiert. Dadurch sind die Funktionsabläufe einfach gehalten, das Haus der Familie erhält einen eigenen Zugang und das Kindernest, sowie die Wohnküche ihren ebenen Ausgang in den eigenen Garten. Das neue Gebäude rückt vom bestehenden Bürgerhaus ab und lässt so einen großzügigen Durchgang als Verbindung von Platz und Park offen, der auch zur Andienung des Bürgerhauses funktioniert. Von diesem überdachten Durchgang erfolgt die Erschließung des Treppenhauses als zweiter Zugang für die Erweiterung des Bürgerhauses. Das Erdgeschoss wird als massiver Sockel und Lochfassade entwickelt, wobei die Öffnungen keinem Raster folgen. Das erzeugt ein Gefühl von äußerer Freiheit und innerer Geborgenheit, zwei sehr wichtige Aspekte für die Nutzungen im Haus der Familie.
Die eigentliche Anbindung der Erweiterung erfolgt über den bestehenden Gang im Obergeschoss. Diese Verbindungsachse wird im Neubau aufgegriffen und fortgeführt. Als Bindeglied dient ein sich konisch öffnender, multifunktionaler Raum, der den Besucher über eine leicht geneigte Rampe und Ebene stufenlos in der Erweiterung ankommen lässt. Der sich nach dem Flur öffnende Raum dient als Foyer für den Saal, mit der Bar als eine Art Wintergarten, als Übergang zu den neuen Besprechungsräumen und mit zwei zusätzlichen Arbeitsplätzen für das bestehende Bürgerbüro. Der Saal und das Foyer bieten einen großartigen Ausblick auf das Gelände der Landesgartenschau. Das Obergeschoss wird mit einem fast umlaufenden Fensterband ausgestattet. Die Scheiben sind dabei schräg gestellt, wodurch die Fassade Struktur bekommt und die Raumakustik deutlich verbessert wird. Das über beide Geschosse durchgehende Konstruktionsraster von 2,50m bzw. 5,00m dient einer einfachen Bauweise.
Das Dach formt sich nach den gewünschten Funktionen und Parametern. Die Raumhöhe in den kleineren Besprechungsräumen ist niedriger als in den größeren Räumen und dem Saal. Dafür steigt das Dach zum Park hin an. Zusätzlich werden asymmetrische Sheds eingefügt, die mit ihrer steilen Neigung nach Norden die natürliche Belichtung des Saals, bei geschlossenem Sonnenschutz im Westen, zulassen. Die langgezogene flachere Neigung nach Süden wird mit einer integrierten Photovoltaik ausgestattet.
Ein Energie- und Lüftungskonzept muss in Abstimmung mit dem bestehenden Bürgerhaus entwickelt werden, wobei aktuelle Themen wie Bauteilaktivierung, reversible Wärmerückgewinnung zur Kühlung und optimierter Sonnenschutz eine Auswahl der Möglichkeiten darstellt.
