Kinderkrippe St.Josef
Umfang Neubau einer Zweigruppige Kinderkrippe als Erweiterung des bestehenden Kindergartens
Ort Altötting
Leistung Architektur, Innenarchitektur, Möbel- und Leuchtendesign, Leistungsphasen 1-8
Status gebaut
Ausführungszeitraum April 2011 - Januar 2012
Bauherr Pfarrkirchenstiftung St.Josef, Altötting
Budget 875.000 €
Größe 300 m²
Auszeichnungen BDIA Jubiläumsbuch 2015/16, geplant+ausgeführt 2013 - 3.Preis, Architektouren 2012
Landschaftsarchitekt Wolfgang Wagenhäuser BDLA, Töging
Fotos Antje Hanebeck, München

Konzept Architektur
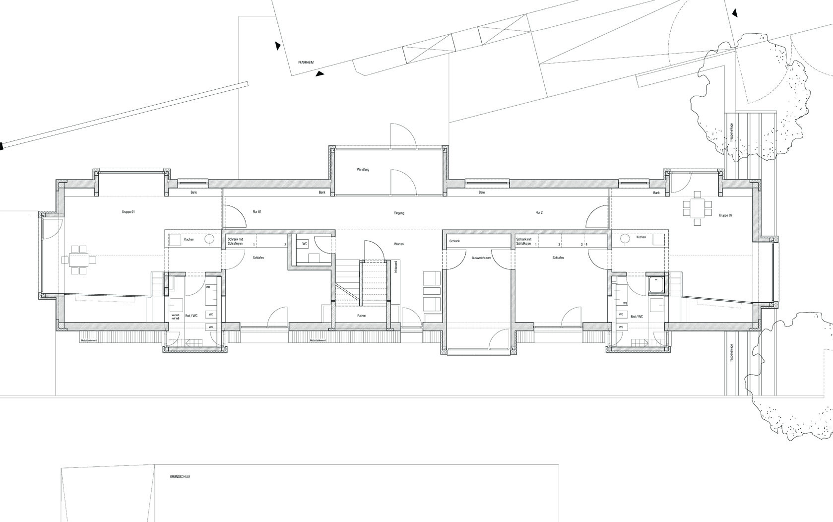
Der Wunsch der Kirchengemeinschaft St. Josef in Altötting Süd, auf einem Restgrundstück zwischen der bestehenden Grundschule und dem Kindergarten, einen Kinderkrippenneubau zu schaffen, stellte die Architekten vor eine komplexe Aufgabe. Schließlich entwickelte sich aus den Zwängen durch Abstandsflächen, Brandschutzvorschriften und Baugesetzen ein langer, schmaler, eingeschossiger Baukörper mit Satteldach.
Um den schlichten Baukörper aufzulockern, wurden funktionale, von innen farbig gestaltete Boxen an das Gebäude aufgesetzt.
Die neu geplante Kinderkrippe befindet sich in direkter Nachbarschaft zu einem architektonisch interessanten Ensemble aus den 70er Jahren, bestehend aus Kindergarten, Pfarrheim und einer großen Kirche dieser Zeit. Prägend für diese Struktur ist der konsequente Einsatz von Kupfer.
Daher wurde dieses Material bzw. seine Farbigkeit zentrales Thema bei der Farbgestaltung der Außenhülle der neuen Kinderkrippe: Sie nimmt sich mit ihrem kupferfarbenen Braunton bewusst zurück, und fügt sich harmonisch in den Bestand ein. Durch die dunkle Farbe sitzt der neue Baukörper zurückhaltend aber selbstbewusst in dem Ensemble.
Konzept Innenarchitektur
Der Eingangs- und Wartebereich schiebt sich mittig als grüne Box durch den Baukörper und wird bis ins OG als Zugang zu Büro- und Personalräumen fortgeführt. Auch in den beiden seitlich gelegenen Gruppenräumen wird dieses Motiv fortgeführt, unter anderem bei den durchgesteckten „Fensterboxen“ als leuchtend farbige Kuschel -und Lesekojen. Die weiß gekalkten Eichenholzdielen korrespondieren mit den hell gebeizten Möbeln aus Fichtenholz, die eigens für die Krippe entworfen und maßgefertigt wurden und die sich deswegen multifunktional in das Konzept integrieren.
So dient der begehbare Spielturm einerseits als Regal, hauptsächlich jedoch kann man hineinkriechen, hinaufklettern, durchkrabbeln, sich verstecken oder die Welt aus verschiedensten Perspektiven entdecken. Aus dem Küchenblock, der außerdem als Raumteiler fungiert, können Podeste herausgeschoben werden, von denen aus die Kleinen „mitarbeiten“.
Auch die dahinter liegenden Bäder bilden sich als herausgeschobene, in Farbe getauchte Boxen plastisch in der Fassade ab und gewährleisten über Sichtfenster größtmögliche Übersicht für die Erzieherinnen sowohl zu den Gruppen, wie auch in die Schlafräume. Für diese verwandelten die Planer von studio lot kurzerhand den unteren Bereich des Einbauschrankes in 4 zusätzliche, kleine Alkoven-Bettchen, in die man durch organische Formen hineinkrabbelt.
