Raiffeisenhaus
Umfang Sanierung und Umbau eines Altstadthauses mit Neubau als Ergänzung
Ort Neuötting
Leistung Architektur, Innenarchitektur, Leistungsphasen 1-8
Ausführungszeitraum 2012 - 2014, 2016 - 2019
Bauherr VR - Meine Raiffeisenbank
Budget 3.200.000 €
Größe 2.157 m² BGF
Visualisierungen digitalshapes mit D.Schumann
Foto Iven Matheis, Eggenfelden und Antje Hanebeck, München

Am Neuöttinger Stadtplatz gelegen soll das denkmalgeschützte Altstadthaus sensibel restauriert und einer neuen Nutzung zugeführt werden.
Konzept Architektur
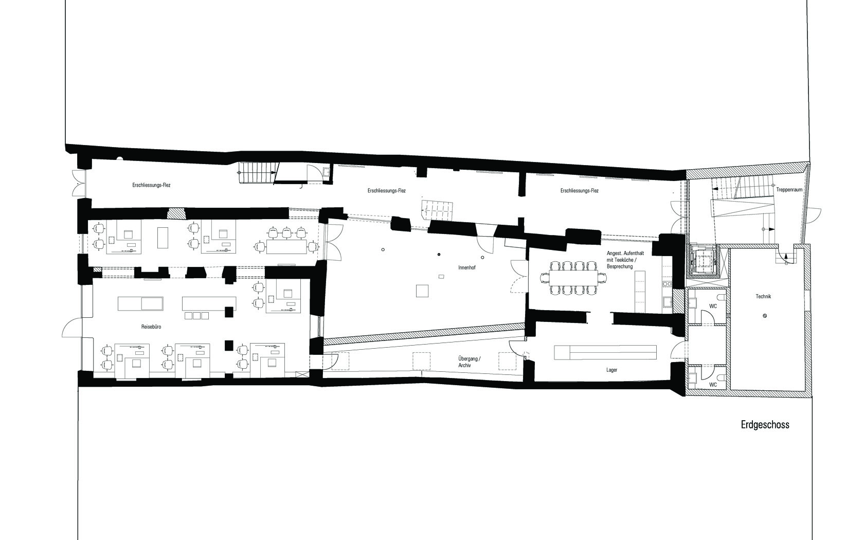
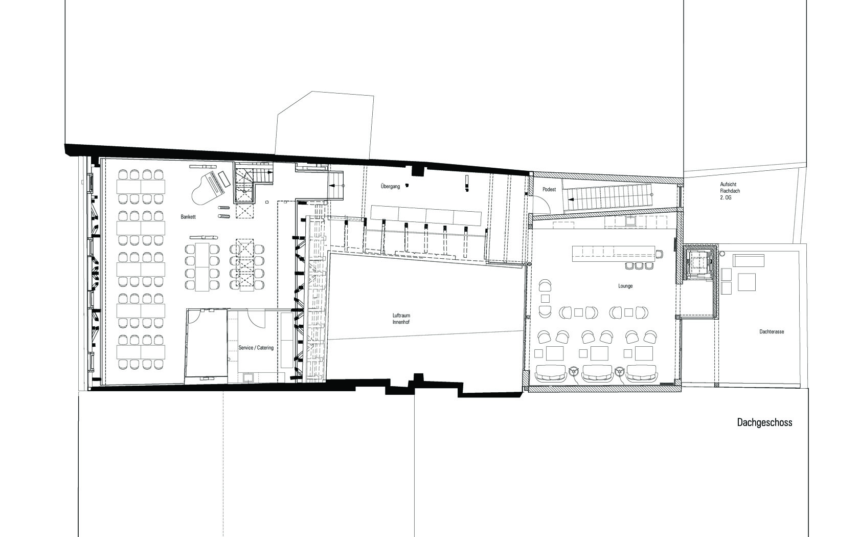
Die Stadtplatzseite soll mit der behutsam restaurierten Fassade neuen Glanz erhalten, während die unattraktiven Garagen rückwärtig durch einen hochwertigen Anbau ersetzt werden. Dieser nimmt erdgeschossig die Technik für Alt- und Neubau auf und gewährleistet durch einen integrierten Aufzug einen behindertengerechten Zugang zu dem gesamten Gebäude. Zusätzlich bietet in diesem Bereich ähnlich wie bei dem Nachbargebäude eine vom Dachgeschoss aus zugängliche Dachterrasse eine hohe Aufenthaltsqualität und einen großartigen Ausblick über Neuötting. Der historische Durchgangsflez wird wiederhergestellt zu einem zentralen Motiv der Erschließung und verbindet das alte mit dem neuen Treppenhaus, wie auch die Ludwigsstraße mit dem Herzog-Georg-Platz. Im Innenhof des Gebäudes wird der marode, zweigeschossige Technikbau entfernt und durch einen eingeschossigen Baukörper ersetzt, der als Verbindungsgang zwischen Verkaufsraum und Nebenräumen des Reisebüros dient.
Konzept Innenarchitektur
Im Erdgeschoss wird das bestehende Reisebüro auf einer größeren Fläche umstrukturiert und durch ein neues Innenarchitektur- und Möbelkonzept aufgewertet. Im Vordergebäude entsteht ein einladender Verkaufsraum für Kunden und Verkäufer, der über ein neu errichtetes Übergangsgebäude mit dem Aufenthaltsraum und den Sanitäranlagen für die Mitarbeiter verbunden wird.
Der Weinkeller mit seinem historischen Gewölbe wird in erster Linie als Präsentationsfläche zur Geschichte des Hauses betrachtet und durch Beleuchtung atmosphärisch in Szene gesetzt.
In den beiden Obergeschossen wird dem Besucher durch eine speziell konzipierte Ausstellung die Geschichte der Raiffeisenbank und des Bankwesens allgemein vermittelt. Restaurierte Stuckdecken und Holzböden bilden zusammen mit zurückhaltenden Ausstellungsmöbeln den Rahmen für diese Ausstellung im Vordergebäude, im Rückgebäude treten diese Elemente in Verbindung mit modernen Estrichböden wieder auf. Im ältesten Gebäudeteil, dem Zwischengebäude mit seiner Fachwerkfassade zum Innenhof, werden die sanitären Einrichtungen untergebracht.
Der hochwertig möblierte Bankettsaal im Dachgeschoss bietet unter seinem imposanten, historischen Dachstuhl 50-60 Personen Platz. Die Bestands-Ziegelwände erzählen entsprechend beleuchtet und roh belassen ebenfalls von der langen Geschichte des Gebäudes. Eine neue Nutzung erhält die historische Gesindekammer, die in Zukunft als Lager dient und den Servicebereich definiert.
Die großzügige Lounge im Rückgebäude kontrastiert großflächige Verglasungen, gerade zur Dachterrasse hin, mit dunklen Holzverkleidungen und schweren Polstermöbeln. Die Bar wird unauffällig in die Wandfläche integriert und durch eine Theke ergänzt.
