Vertriebsbüro Schlagmann Poroton
Umfang Innenausbau, Schauraum, Büro
Ort München
Leistung Innenarchitektur, Möbeldesign
Status gebaut
Ausführungszeitraum November 2012 - Oktober 2013
Bauherr Schlagmann Poroton
Größe 194 qm
Auszeichnungen Architektouren 2014
Fotos Ulrich Wolf, Maiwolf Photography

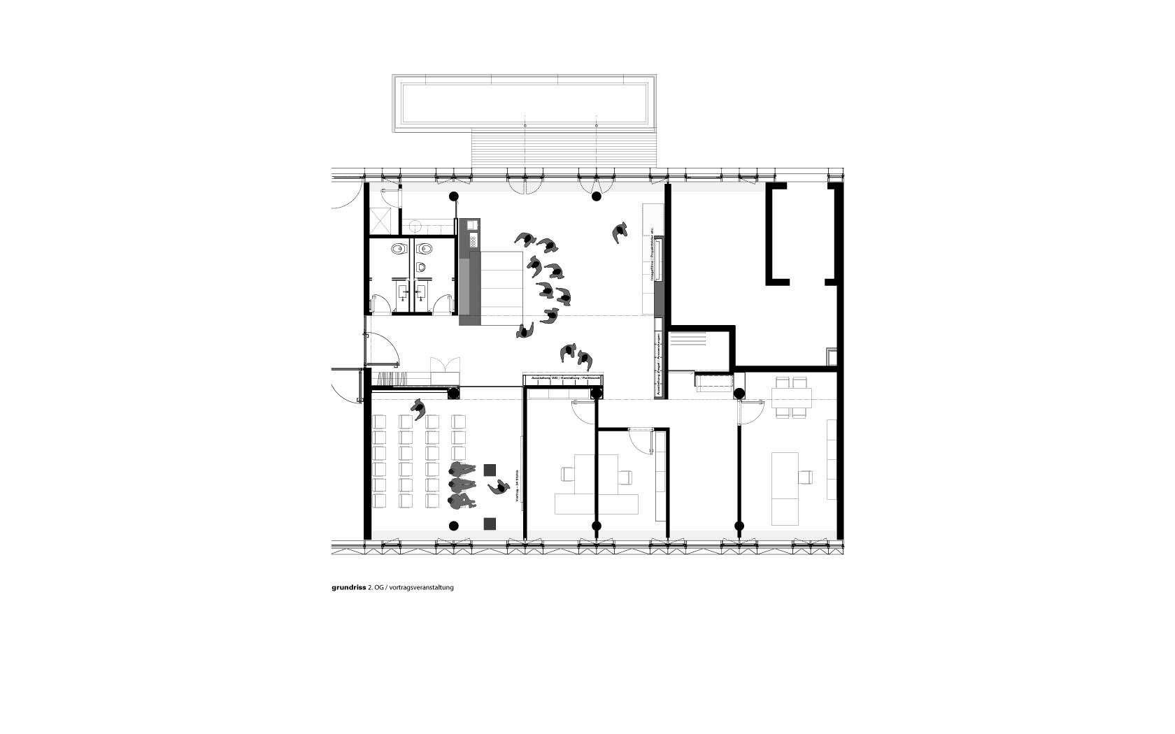
Das neue Vertriebsbüro ist eine Plattform für Kunden, Planer und Industrie. Gleichzeitig dient es der Präsentation der Produkte des Ziegelherstellers.
Von einem offenen Empfangsbereich mit Schauraum und Arbeitsbereich geht ein Besprechungs- und Vortragsraum ab. Die Räume können mittels einer großen Schiebetür und einem Zugang zur Terrasse strukturiert, umgeformt und erweitert werden. Es können parallel Vorträge, Beratungen oder Konferenzen und Schulungen stattfinden, während in den anschließenden Einzelbüros gearbeitet werden kann.
Die Möblierung dieser Bereiche zieht sich wie ein funktionelles Wandband durch die Räume. In einer vorgesetzten Wandkonstruktion sind Medien, Steuerungen, Stauraum, Informationsmaterial und schließlich die Ziegel eingebettet. Dieses Wandmöbel lässt sich durch Klappen und Schübe öffnen und erweitern. Der Blick auf die Informationen dahinter oder darin kann Stück für Sück freigegeben werden. Hinter den Öffnungen des Wandmöbels liegende, beleuchtete Schaukästen erzeugen Spannung auf den zweiten Blick. Auf den beleuchteten Tafeln werden die aktuellen Produkte der Firma vorgestellt. Ein gesonderter Schaukasten zeigt die Geschichte des Ziegels, um die Bedeutung und Wichtigkeit des Materials Ton und des Ziegels zu untermauern. Die Geschichte wird eng mit den heute aktuell produzierten Ziegeln verknüpft.
Ein großer Tisch, der ähnlich einer Werkbank verschiedene Funktionen und Möglichkeiten beinhaltet, ist im Zentrum des Schauraums platziert. Man kann daran und damit arbeiten. Er kann verändert, verschoben und je nach Bedarf umgestellt werden.
Die Hauptfarbe Schwarz für die Möblierung erwirkt den Eidruck eines großen Schaukastens.
Die Auswahl der Materialien wurde sorgfältig um die Farben des Unternehmens ausgewählt und in einer sehr reduzierten Weise ausformuliert, so dass das Material Ziegel eindeutig spürbar bleibt.
Das neue Büro soll die Identität der Marke Schlagmann Poroton unterstützen.
