Erweiterung des Stadtarchives Wolfratshausen
Umfang Wettbewerb
Ort Wolfratshausen
Größe 3315 m³
Landschaftsarchitekt Wolfgang Wagenhäuser, Töging am Inn

STÄDTEBAU
In städtebaulicher Hinsicht soll die jetzige solitäre Stellung des Bestandsgebäudes gestärkt werden, und nicht durch einen Zubau verwässert. Eine langgezogene Erweiterung würde sich vor die bestehende flussseitige Stadtsilhouette schieben und eine neue Bebauungsreihe direkt an der Loisach andeuten. Die Konsequenz ist eine punktuelle Aufstockung des Bestandes mit der geforderten Kubatur. Die vorhandene Stadtstruktur der "Gassen" vom Obermarkt bleibt durch diesen Solitär weiterhin zur Loisach hin durchlässig und mit dem Wasser verbunden.
Am strukturell wichtigen Schnittpunkt von Loisach und Andreasbrücke, direkt im Stadtzentrum, entsteht dadurch ein markanter Akzent als Torsituation zum neuen "Stadtufer".
Die städtischen Außenbereiche und Freiräume werden dadurch klarer definiert. Der Platz vor dem Heimatmuseum bekommt eine seitliche Fassung, der neue Uferbereich einen städtischen Fixpunkt.
Die überhöhte archetypische Bauform erzeugt mit seinem traditionellen Satteldach ein eher gewohntes Bild und fügt sich als markantes Identifikationsgebäude in den Stadtkontext ein.
ARCHITEKTUR
Gewünschtes Ziel ist die räumliche Erweiterung des städtischen Archivs und gleichzeitig eine stärkere Präsenz in der Öffentlichkeit. Zwingende Vorgabe ist jedoch der Erhalt des bestehenden Pumpenwerks und der Räume für die EON im Erdgeschoss und den beiden Untergeschossen.
Um das Ergebnis der städtebaulichen Analyse umzusetzen, wird der zu erhaltende Bestand überbaut und in das erweiterte Programm integriert.
Dach und oberstes Geschoss werden dafür abgetragen und das Treppenhaus entfernt.
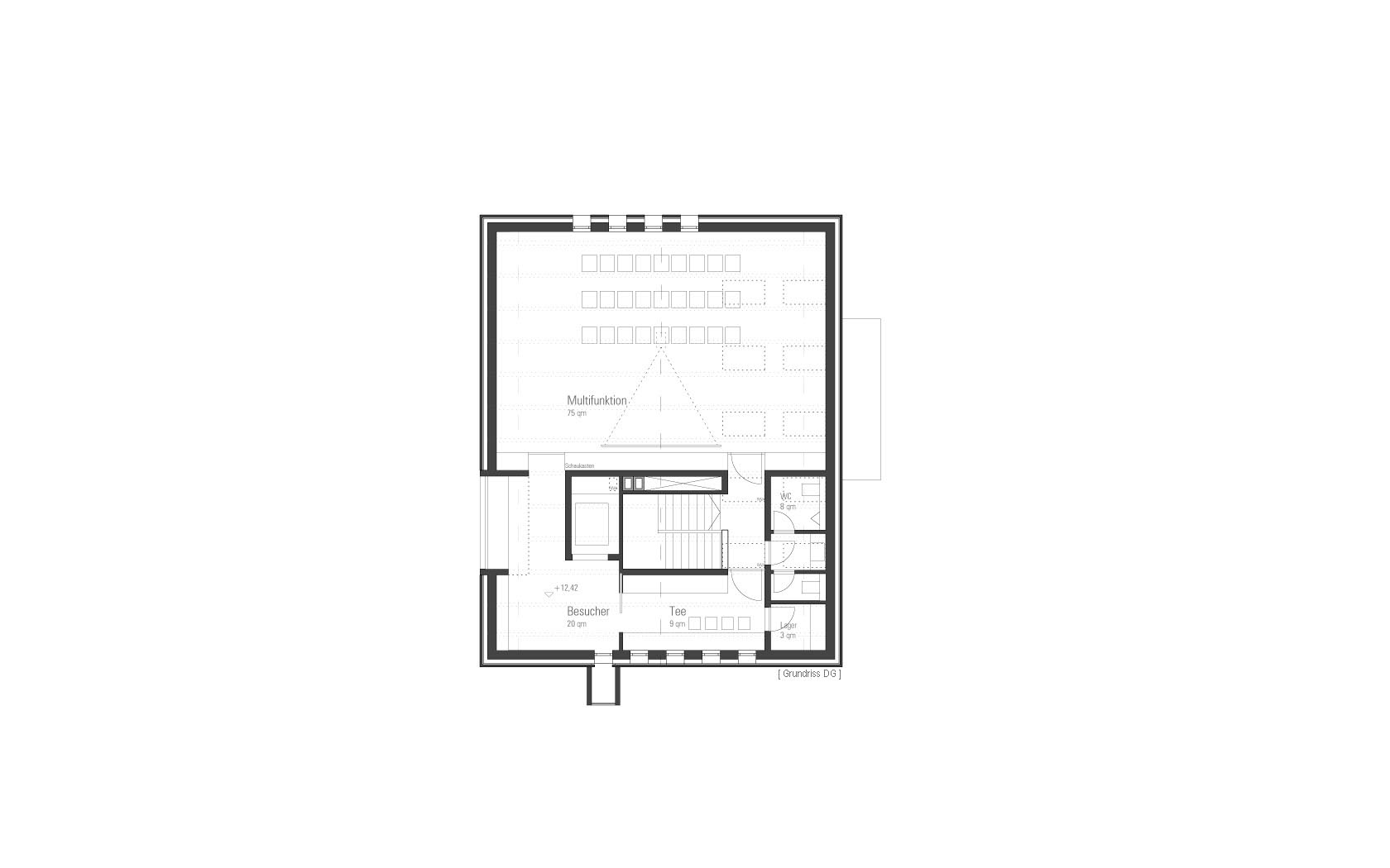
Die geforderten Nutzungen werden darüber geschichtet und mit neuem Treppenkern und Aufzug barrierefrei erschlossen. Eingang und Erschließung orientieren sich zum neuen Stadtufer, um die Bürger und Gäste in den neuen repräsentativen Besucherbereich einzuladen. Die Arbeitsplätze der Besucher orientieren sich durch ein großzügiges Panoramafenster zur Loisach. In den beiden Geschossen darüber befinden sich, deutlich über dem Höchstwasserstand liegend, die optimal temperierten fensterlosen Magazinräume.
Der gewünschte Multifunktionsraum wird an oberster Stelle im hohen offenen Dachraum untergebracht und erhält seine Anziehungskraft für die Öffentlichkeit durch seine spektakuläre Raumwirkung und die schönen Ausblicke über Altstadt und Loisach - ein wunderbarer Rahmen für alle Ausstellungen und Veranstaltungen im neuen Stadtarchiv und ein Mehrwert für die Stadt.
Durch wenige signifikante Einblicke in den eher geschlossenen Monolithen entsteht ein spannender Dialog mit der Umgebung.
Um seinen Stellenwert in der Gemeinschaft als kulturelles öffentliches Gebäude zu betonen, wurde eine vorgehängte Klinkerfassade gewählt, die durch unterschiedliche Muster und Transparenzen ein abwechslungsreiches Fassadenbild erzeugt, entgegen der vordergründigen Geschlossenheit.
Die helle, erdtonige Steinfassade bezieht sich mit seiner geschichteten Struktur auf die Schichtung der Nutzungen und der im Inneren bewahrten Geschichten und der Zeit an sich. "Stein für Stein" wird das historische Kulturgut für nachfolgende Generationen bewahrt und beschützt - die Geschichte der Stadt wird fortgeschrieben.
LANDSCHAFTSARCHITEKTUR
Das überplante Stadtarchiv setzt in erweiterter Funktion und neuem Gewand einen markanten Punkt im Norden des westlichen Loisachufers (Planungsgebietes). Die Nordseite des Gebäudes wird von jeglichen Möbilierungen und Bepflanzungen freigehalten; lediglich ein Platzbaum, sowie eine Platzfläche als Schotterrasen (Feuerwehraufstellfläche) begleiten hier die Sprache des Bauwerks. Der bestehende Fuß- und Radweg, der bis dato auf der Flussseite direkt an der Fassade verlief, wird nun auf die andere Seite des Gebäudes versetzt. Somit erschließt/tangiert er den Vorplatz (Eingangsplatz), welcher mit reduzierter Gestaltung (Baum, Bank, Wasserbecken) zur Loisach hin als Aussichtsplateau fungiert.
Dieser neue Treffpunkt (Kommunikationsort) bildet zudem den nördlichen Auftakt für den Ideenteil, das "Naturerlebnis Loisach". Das Planungsareal wird hier in parallele Achsen aufgeteilt. Das verkehrsberuhigte, westliche Loisachufer erfährt mit Hilfe eines einheitlichen Teppichs (Granitkleinstein bzw. Granitgroßstein) eine gestalterische Entschleunigung, welcher sich im gesamten Bereich von der Andreasbrücke bis hin zum Seilergassl erstreckt. Parkplätze werden mit Ausnahme der vier gewünschten vor dem Rathaus rückgebaut, dafür wird die bestehende Baumreihe "straßenbegleitend" fortgeführt und ergänzt. Eine Fahrradbox gegenüber dem neuen Stadtarchiv erfüllt die Anforderung der 20 überdachten Stellplätze.
Eine Mauer (ca. 40cm bis 120cm), welche auf die jeweilige Höhensituation (Bestandshöhen: Damm und Straße) reagiert, trennt den verkehrsberuhigten vom verkehrslosen Bereich. Wichtige bestehende Achsen, welche vom Stadtbereich (Marktplatz) hin zum Loisachufer führen, werden aufgegriffen. Über kleine Treppen- bzw. Rampenanlagen, zu Stegen weiterentwickelt, dienen sie als Erschließungselemente für den neuen Uferbereich.
Im Süden des Ideenteils befinden sich der "Japanische Garten", welcher als exotisches Geschenk eine Partnerschaft symbolisiert, sowie die geschützte "Finsterwalder Linde", die seit langen Zeiten als Ortsansässige das Landschaftsbild am Loisachufer prägt. Diese beiden Elemente im Bestandsgrün von Wolfratshausen sind Ideenlieferanten für das Konzept eines "Multifloralen Naturerlebnisses" am Rande der Loisach. So soll der einheimische Gehölzbestand (Böschungsbegrünung, Bestandsbäume, etc.) weitestgehend erhalten bleiben und mit fremdländischem (funktionierendem) Grün aus aller Welt ("Wald der Welten") zu einem botanischen Garten mit Heimatbezug vervollständigt werden. Es können in verschieden thematisierten Aktionen nach und nach Baumgruppen, -reihen, sowie solitärstehende Gehölze gepflanzt werden, welche mit Informationsmaterial beschildert das Interesse der Besucher wecken. So ertreckt sich der neue Rad- und Fußweg vom Süden her auf dem Höhenniveau des bestehenden Dammes bis hin zum neuen Stadtarchiv und wird dabei immer wieder von Attraktionen mit Verweilqualität begleitet, sowie von Stegen, die Ausblicke auf den Fluss und darüber hinaus ermöglichen, gequert.
Die Uferzone zwischen Sebastianisteg und Stadtarchiv soll dem Nutzer den Fluss sogar noch näher bringen. In diesem Bereich wird die bestehende Böschung neu modelliert und hin zu einem naturnahen Strandbereich rückgebaut. Mit Findlingen, Kies bzw. Rieselgestein, freien Gräsergruppierungen, einigen Gehölzen, sowie Holzdecks und Feuerstellen lädt dieser "StrandOrt" zum besonderen Flusserlebnis. Auch wäre es denkbar, hier eine kleine Außenstelle des Cafés am Rathaus zu etablieren, wo durstige Radfahrer und Fußgänger ihren Weg unterbrechen, sich stärken und dabei die wohlige und interessante Atmosphäre des neuen Loisachufers genießen können.
ENERGIEKONZEPT
Im Energiekonzept für das Stadtarchiv in Wolfratshausen empfiehlt sich die Nutzung eines bivalenten Systems aus regenerativer Wärmepumpentechnik zur Grundlastheizung und Erdgasbrennwerttechnik zur Spitzenlastabdeckung. Für die Spitzenlast kann nach Prüfung evtl. der bereits vorhandene Gaskessel verwendet werden (Investkostenersparnis). Die effiziente Aufteilung 2/3 Spitzenlast und 1/3 Grundlast (neue Wärmepumpe) würde (nach Sanierung) die Leistung des bestehenden Kessels gut treffen.
Als Wärmepumpe kann nach Prüfung in erster Linie eine Wasser/Wasser-Wärmepumpe geplant werden. Diese nutzt die Umweltenergie des Grundwassers (hier durch die Flussnähe sicherlich gut erschließbar) und transferiert diese Energie auf ein für das Gebäude nutzbares Niveau. In zweiter Linie ist auch eine Sole-Wasser-Wärmepumpe möglich, welche die Umweltenergie des Bodens mittels Erdsonden nutzt.
Voraussetzung für den sinnvollen Einsatz der Wärmepumpentechnik sind Niedertemperaturheizflächen. Diese sind in allen Nutzflächen abseits des Archives durch Fußbodenheizungen und Wandheizung realisierbar. Die technische Herausforderung liegt bei der Gestaltung des Archives. Hier sind zum Schutz des Archivguts offene Leitungssysteme zu vermeiden. Daher bietet sich eine Bauteiltemperierung an, welche ähnlich wie bei einer Fußbodenheizung, die Heizrohrschlangen mittig in der neutralen Zone der Bodendecken enthält. Damit sind die wasserführenden Systeme mit mind. 15cm Beton umfassend eingehüllt und im Falle einer Leckage treten zuerst langsam Wasserflecken auf, bevor es evtl. zu Wasserschäden am Archivgut kommt. Diese Bauteiltemperierung kann auch in den Außenwänden rund ums Archiv realisiert werden. Die Temperierung der Bauteile kann sowohl heizseitig, als auch kühlseitg verwendet werden. Hier kommt wieder das Energiekonzept mit Wärmepumpe synergetisch ins Spiel! Bei der Wasser- oder auch Solewärmepumpe kann aus dem Wasser oder Boden auch Kälteenergie gewonnen werden. Diese steht zwar nur zu einem relativ hohen Niveau (ca. 15°C) zur Verfügung, ist aber für eine Bauteiltemperierung völlig ausreichend. Damit kann durch die Bauteiltemperierung mit extrem günstigen Betriebskosten das Archiv ausreichend grundgekühlt und -geheizt werden. Die Temperatureinflüsse von Außen werden durch die sehr gut gedämmte Außenhülle sowieso niedrig gehalten.
Die genaue Temperaturregelung erfolgt über die Lüftungsanlage, die auch durch das Fehlen von Fenstern für den hygienischen Mindestaußenluftwechsel im Archiv sorgt. Die technisch aufwendige Ausrüstung dieser Lüftungsanlage kann durch die gute Grundheizung und -kühlung möglichst klein und somit günstig im Invest und Betrieb gehalten werden.
Die Warmwasserbereitung für die Sanitärbereiche und Teeküche sollte generell dezentral über elektrische Untertischbrauchwarmwassererzeuger erfolgen. Damit sind alle hygienischen Aspekte (Legionellen-Schutzsystem) im Warmwassersystem minimiert und die derzeit immer höher werdenden Betreiberpflichten vermieden.
