Captain Hook
Umfang Neubau Flugvorbereitung
Ort Deutschland
Leistung Architektur, Innenarchitektur, alle Leistungsphasen
Status gebaut
Fertigstellung Oktober 2011
Auszeichnungen Deutscher Innenarchitekturpreis 2014 - Auszeichnung Kategorie Gewerbe & Büro,
BDIA Jahrbuch 2013, Heinze ArchitektenAWARD 2012 "Faszination Innenraum" Short List
Fotos Antje Hanebeck, München

Konzept
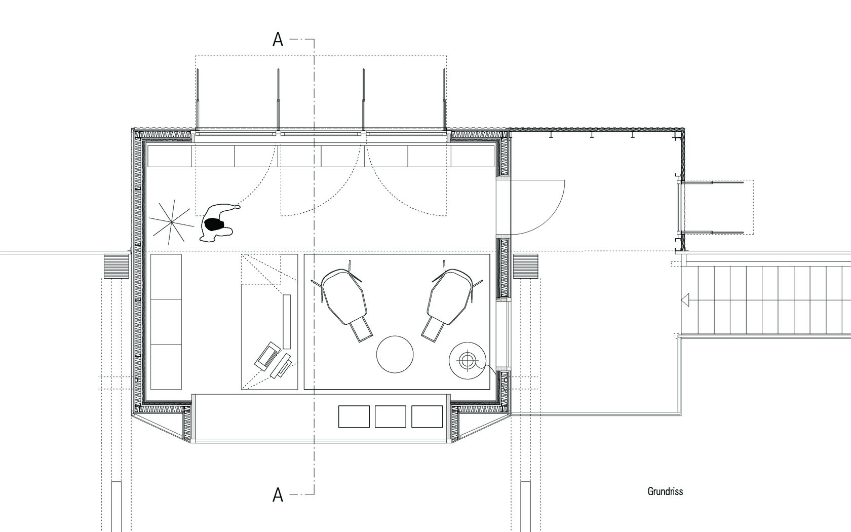
Integriert in eine bestehende Flughalle wird die schlichte Bauaufgabe, ein Büroraum zur Flugvorbereitung, als eigenständiger und doch auf viele Arten bezugnehmender Baukörper umgesetzt. Um die freie Fläche für die Flugzeuge nicht einzuschränken, wird ein Raum als Stahlgerüst zwischen die Betonbinder der Halle eingehängt, zur Hälfte in der Halle und zur Hälfte außerhalb.
Die äußere Haut dieser „Box“ ist formgebend und definiert ihren Charakter. Außen zurückhaltend der Fassade der bestehenden Halle folgend, ist sie in der Halle in polygonale Flächen geschnitten (ähnlich der Tarnkappentechnik mit der die Radarortung gestört wird). Dabei reflektiert die Oberfläche aus Spiegelblech die Halle mit seinen Flugzeugen nur in Facetten gebrochen und lässt den Baukörper förmlich verschwinden. Die Befestigung der Bleche mit Nieten nimmt wiederum Bezug auf die Konstruktion von Flugzeugverkleidungen.
Die innere Hülle dämmt und definiert den Raum wie ein Inlay. Als horizontales Band rahmen die Außenfenster den Blick über die Landschaft mit den startenden und landenden Flugzeugen. Gegenüber gibt das Panoramafenster in die Halle den Blick auf die wartenden Flugzeuge frei. Die Neigung der Glasscheibe zitiert die bekannte Verglasung eines Flugtowers und schafft einen speziellen Sitzplatz mit spannendem Sichtkontakt zu den Fliegern. Diese Ausblicke betonend hält sich der Innenraum in seiner Farbanmutung und Möbelgestaltung zurück, nur die Decke erzählt vom Himmel.
Der Projektname „Captain Hook“ ist ebenso vielschichtig wie das Projekt selbst. Er ist zum einen abgeleitet von dem Trojan T28-Trainingsflugzeug des Bauherrn und seinem „Tail Hook“, dem Fanghaken für den Einsatz auf Flugzeugträgern, zum anderen nimmt er Bezug auf die Geschichte von Peter Pan und den Traum vom Fliegen und der Freiheit.
"Kennst Du den Platz zwischen schlafen und wachen? Der Platz wo Deine Träume noch bei Dir sind? Dort werde ich Dich auf ewig lieben, Peter Pan. Dort werde ich auf Dich warten." (Wendy)
