Gästeplushaus
Umfang Neubau eines Plusenergie-Designhotels
Ort Murnau am Staffelsee
Leistung Architektur, Innenarchitektur
Status eingeladener Wettbewerb, 1. Preis
Ausführungszeitraum 2011
Bauherr Diana & Dominikus Brettner
Größe 40 Betten, ca. 6.250 m³
Auszeichnungen Hotel Application Award 2011 "Best Innovative Concept"
Landschaftsarchitekt Wolfgang Wagenhäuser, Töging am Inn
Beratung Energiekonzept Ingenieurbüro Lackenbauer, Traunstein
Visualisierungen digitalshapes mit D.Schumann

hausundhof - mehrenergiehotel murnau
" Wie kann man die hohe geforderte Baumasse mit den gewünschten Ansprüchen auf einem kompakten Grundstück sensibel in die bestehende Umgebung integrieren und mit einem nachhaltigen Energiekonzept kombinieren? "
Für uns der Kern dieses Wettbewerbs.
Das Grundstück bietet keine spezifischen Merkmale für ein Designhotel, wie z.B. die Topografie mit sensationellem Ausblick, die spezielle Altstadtlage oder den direkten Steg auf den See. Das längliche Grundstück orientiert sich mit der Breitseite nach Ost-West und erschwert die energetisch optimale Südausrichtung zur solaren Energiegewinnung.
Konzept
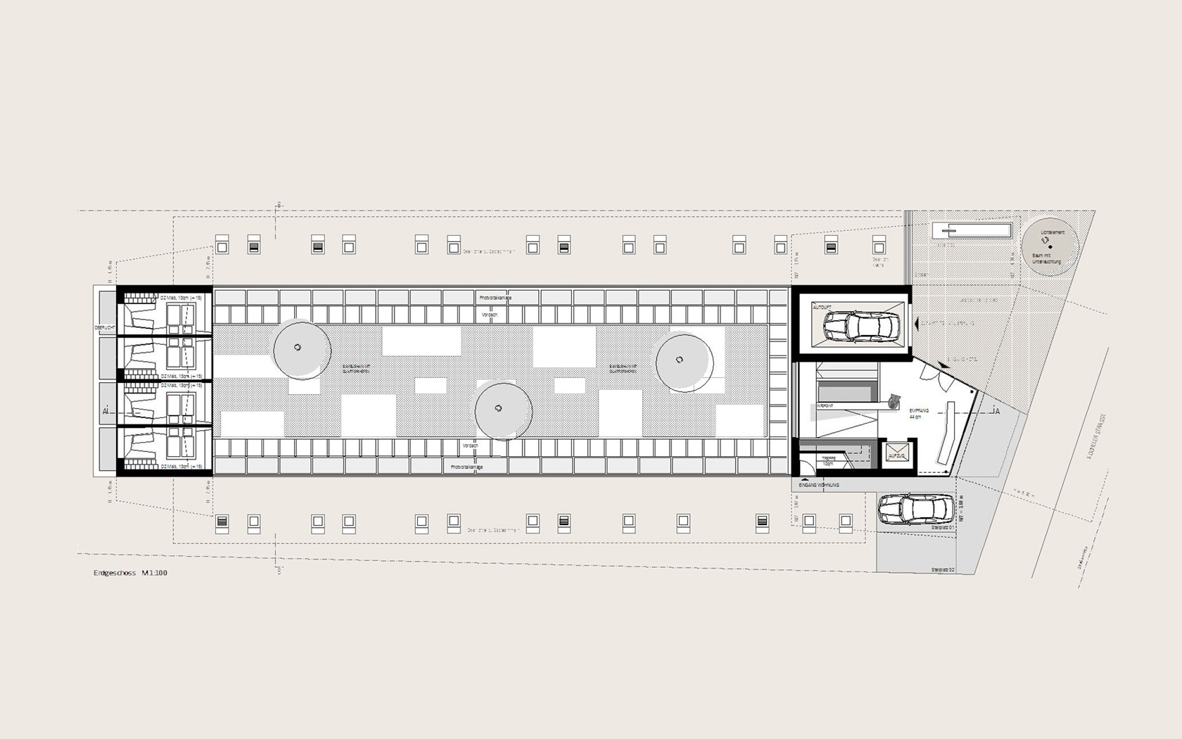
Es gilt die sichtbare Baumasse im angemessenen Verhältnis zur umgebenden Bebauung zu entwickeln und gleichzeitig dem Gast einen Ort der Ruhe, ein Gefühl des Besonderen zu vermitteln.Aus funktionalen Ansprüchen heraus, sollte die Hotelnutzung nicht in zwei einzelne Baukörper zerteilt werden, sondern auf einer gemeinsamen Ebene organisiert sein. Anbindung und Erschließung soll von der Hauptstraße aus im Norden erfolgen.
Idealerweise folgt die städtebauliche Gliederung der bestehenden Umgebung, mit angemessenen Baumassen an den beiden Straßen und einem grünen Freibereich dazwischen.

Schnittsilhouette
Durch Überlagerung der Lobby mit dem gewünschten Wohnloft ergibt sich eine Nutzungskombination die sich Anbindung, Erschließung und Präsenz in der Nachbarschaft teilen kann. Diese kompakte Struktur bildet den Baukörper an der Hauptstraße und fügt sich modern und traditionsbewusst in die Straßenzeile ein. Die Gästezimmer sollen einzigartige, nachhaltige Qualitäten erhalten und nicht mit der Umgebung in Konkurrenz stehen. Ein für die Nachbarn sichtbarer Garten kombiniert mit einem ruhigen Innenhof für die Gäste. Dafür werden die Zimmer auf einer Ebene organisiert, einfach und übersichtlich um einen gemeinsamen Hof, abgesenkt und ins Grundstück eingebettet. Dieser tiefer liegende Innenhof entzieht sich somit der Wahrnehmung der Nachbarn. Sichtbar bleibt nur ein Garten. Den kleineren Gebäudeteil im Süden bilden vier Maisonetten für Gäste die länger bleiben, als architektonischer Abschluss der Anlage. Dadurch entsteht eine besondere Gebäudetypologie als unverwechselbare und ortsverbundene Architektur, die Akzeptanz in der Umgebung und Interesse in der Öffentlichkeit erreicht.
Funktionen
Wohnloft
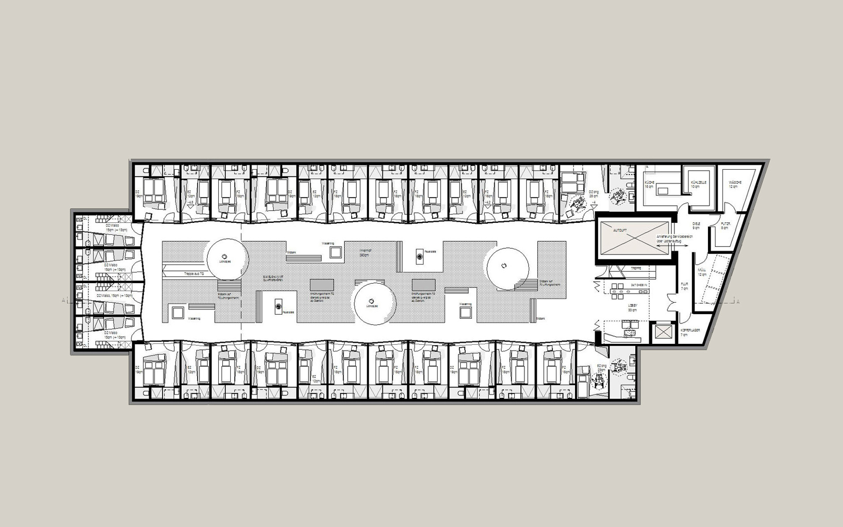
Im ersten Obergeschoß des Hauptgebäudes sind die Schlafzimmer der Eigentümer untergebracht, im zweiten Obergeschoß befindet sich der großzügige Wohn- Essbereich. Sowohl die Schlafzimmer, als auch der Wohn-Essbereich sind nach Süden orientiert und bieten einen freien Blick in das Alpenvorland. Das Wohnloft wird sowohl mit dem Hotelaufzug, als auch mit dem eigenen externen Zugang über eine Treppe vom Erdgeschoß aus erschlossen.
Lobby
Im Erdgeschoß des Baukörpers befindet sich die Lobby. Dieser Bereich erstreckt sich bis in das erste Untergeschoß-Hofgeschoß. Sie dient als Erschließungs- ebene für die Gästezimmer. Diese zwei Geschosse sind über eine Galerie und Lufträume miteinander verbunden.Der Raum zwischen dem Lift in die Tiefgarage und der Erschließung der Eigentümerwohnung wird vollflächig verglast. Passanten erhalten einen Einblick in das Gebäude und einen Durchblick zur Hofebene mit den Gästezimmern.
Hof
Die Erschließung der Zimmer erfolgt über einen hellen und ruhigen Innenhof, nicht wie üblich, über einen
dunklen Hotelflur. Diese Freifläche ist als Bambushain angelegt, um kleine Außenräume zu schaffen. Zum einen wird dadurch eine gewisse Privatheit der gegenüberliegenden Zimmer erzeugt, zum anderen sind ausgesparte Quartiershöfe Orte des Treffens und des Rückzugs. Sitzbänke, Feuerstellen, Wassertröge und drei beleuchtete Hofbäume möblieren den Innenhof. Es entsteht eine großzügige grüne Lobby der Ruhe.
Gästezimmer
In Verlängerung der Gebäudekanten des Haupthauses werden die Gästezimmer an die seitlichen Ränder der
Grundstücksgrenzen gesetzt und in die Erde eingegraben. Alle Zimmer sind zum Hof orientiert und zu diesem vollständig verglast. Um vor unerwünschten Einblicken zu schützen, wird ein verspiegeltes Glas mit außen liegendem Sonnenschutz und ein auf der Innenseite angebrachter Blackout Vorhang vorgeschlagen. Zusätzliches Licht erhalten die Zimmer in den hinteren Bereichen mit Oberlichtern, welche über den Bädern
angeordnet sind.
Maisonette
Am Ende der seitlich liegenden Gästezimmer wird ein Gebäude als Pendant zu dem Kopfbau gesetzt. In
diesem Baukörper sind 4 Maisonette-Zimmer untergebracht, die sich über die Hofebene und das Erdgeschoß erstrecken. Der sichtbare Gebäudeteil entspricht in seiner Größe und Form der nachbarschaftlichen Bebauung im hinteren Grundstücksbereich.
Tiefgarage
Die Tiefgarage wird über einem Aufzug erschlossen, der gleichzeitig auch als Lastenaufzug für die
Anlieferung der Servicebereiche genutzt wird. Sie wird über teilweise verglaste Lüftungsschächte natürlich belichtet und belüftet.
Materialkonzept
Eine Kombination aus natürlichen, unbehandelten, warmen Materialien im Spannungsfeld mit high
tech-Materialien der Ernergieerzeugungsflächen, eigebettet in eine grüne Naturlandschaft. Das Hauptgebäude erhält als Reminiszenz an seinen Vorgänger, das "Haus Schmaus" eine dunkel gebeizte Holzverschalung. Auch in den Zimmern soll eine warme, angenehme Atmosphäre durch Verbindung von hellem Holz, Glas und Wandflächen aus gestockten Sichtbeton geschaffen werden.
Maßnahmen zur Erlangung des Passivhausstandards, Energieverbrauch < 15 KW/qm/a, einschl. zusätzlicher
Konzepte zur Energieerzeugung
- Photovoltaikfläche mit Dünnfilm-PV-Modulen, auf Vorder- und Rückgebäude, ca. 190 qm, Ausrichtung nach Süden
- Photovoltaikfläche entlang Hofbegrebzung, ca. 80 qm, Ausrichtung nach Westen/Osten
- Tageslicht über hochgedämmtes Dachflächenfenster mit integriertem Sonnenschutz
- Ab EG-Niveau, hochgedämmter Holzständerbau mit Holzfaser-Wärmedämmung, sommerl. Wärmeschutz
- Solarthermiefläche, 75 qm, Neigung 85°, Ausrichtung nach Süden für Bauteilaktivierung
- Photovoltaiklamellen, feststehend, als Sonnenschutz
- hochwärmegedämmte Stb-Wände/Decken im UG, Speichermasse mit Bauteilaktivierung
- ‘Energiepfähle’
- Regenwasserzisterne Brauchwasser für Toilettenspülung
Sommerlicher Komfort
Die Reduktion externer Wärmelasten wird mittels passiver Kühlstrategien erreicht. Durch das Eingraben der Gästezimmer in das Erdreich wird ein Wärmeübertrag über die Oberflächen vermieden, wodurch die Schwankungen der Raumtemperatur geringfügig ausfallen und ein behagliches Innenraumklima herrscht. Die Fensterflächenanteile werden reduziert. Diese werden nur an den schmalen, zum Innenhof orientierten Raumseiten eingesetzt und entsprechen einem Passivhaus Standard mit 3-fach Verglasung. Bei hohem Sonnenstand findet eine Verschattung der Fensterflächen mittels des überdachten Umgangs, bei niedrigem Sonnenstand mit Hilfe von außenliegenden, in Abhängigkeit der Sonneneinstrahlung gesteuerten Jalousien statt. In den Oberirdischen Gebäudeteilen wird die Fenster-/Glasfläche auf ein Minimum reduziert und
zusätzlich an den Außenseiten mit der vertikalen Holzverschalung versehen. Die gesamten Konstruktionen werden im gehobenen Passivhaus Standard ausgeführt.
Tageslichtkonzept
Alle Gästezimmer sind mit ihren Fensterflächen zum Hof orientiert (Ost-West Ausrichtung). Eine gleichmäßige Tageslichtversorgung der Zimmer wird über die hofseitigen, raumhohen Verglasungen und die Oberlichter in den rückwärtigen Zimmerbereichen gewährleistet. Verstärkt wird dies durch den geringen Verbauungsgrad und die somit geringe Eigenverschattung, sowohl innerhalb der Zimmer als auch an der Glasfassade außerhalb der Zimmer. Der Einsatz von Kunstlicht wird dadurch stark reduziert. Die Belichtung des Lobby-/Empfangsbereiches im EG und UG wird durch die großflächige Verglasung im Norden und Süden, sowie dem offenen Grundriss mit seinen Lufträumen über beide Ebenen gewährleistet.
ENERGEIKONZEPT
Wärmeschutz
Der spezifische Heizwärmeverbrauch des Neubaus wird im Vergleich zu herkömmlichen Neubauten um den Faktor 3 reduziert (15 bis 35 kWh/qm-a statt 50 bis 90 kWh/qm-a). Dies wird in erster Linie durch die
Durchführung hochwertiger Wärmeschutzmaßnahmen (Wärmeschutzfenster, Dämmung) sowie eine sorgfältige
Planung erreicht. Alle Gebäudeteile sind mit Passivhauskomponenten geplant und auf eine ganzjährliche Nutzung für Winter- und Sommerfall optimiert.
Optimiertes Heiz- und Warmwasserkonzept
Der Betrieb von Wärmeerzeugung und Verteilung erfolgt mit abgesenkten Rücklauftemperaturen durch dezentrale Warmwasserbereitung mit Plattenwärmetauschern und Bauteilaktivierung. Reduzierung der
technisch erforderlichen Bauteile auf das funktional Nötige.
Lüftung mit Wärmerückgewinnung
Das Gebäude erhält eine Komfortlüftung mit hocheffizienter Wärmerückgewinnung von angestrebten
85% Rückwärmzahl, geringem Strombedarf von max. 0,40 W/cbm/h sowie minimierten Luftmengen durch Quelllüftung und bedarfsorientierter Regelung.
Wärmeerzeugung Solaranlage
Der Restwärmebedarf wird weitestgehend mit regenerativen Energien gedeckt. Eine Flächenheizung
(Betonkernaktivierung) mit sehr großer Speichermasse ermöglicht eine Solarenergienutzung im Winter. Hierzu
wird eine thermische Solaranlage mit einer Fläche von 75 bis 90qm und einer Neigung von 85° errichtet. Durch die optimale Südorientierung wird die Solaranlage auf den winterlichen Betrieb dimensioniert. Eine
Heizwärmeerzeugung von 55 bis 80% ist hierdurch möglich.
Wärmeerzeugung Wärmepumpe
Die verbleibende Heizwärme und die Trinkwassererwärmung im Winter werden durch eine Wärmepumpe sichergestellt. Durch den optimierten Betrieb mit Energiepfählen und Vorwärmung durch die Solaranlage
werden hohe Leistungszahlen im Bereich von 5 bis 6 erreicht.
Wärmeübergabe Bauteilaktivierung
Durch eine thermische Bauteilaktivierung soll die Grundtemperierung der Zimmer auf 21°C bereit
gestellt werden. Hierzu sollen Heizschlangen in die Betondecken und -böden einbetoniert werden. Durch
die großflächige Verlegung und den ununterbrochenen Betrieb dieses Heizungssystems sind sehr geringe
Vorlauftemperaturen von 29°C denkbar.
