Montessorischule Gilching
Umfang Wettbewerb
Ort Gilching
Leistung Wettbewerbsentwurf
Ausführungszeitraum 2015
Bauherr Montessoriverein Gilching
Darstellungen studio lot

"Die Aufgabe der Umgebung ist nicht, das Kind zu formen, sondern ihm zu erlauben, sich zu offenbaren.
Nicht das Kind soll sich der Umgebung anpassen, sondern wir sollten die Umgebung dem Kind anpassen."
Maria Montessori
Um das Gebäude auf dem Grundstück optimal zu entwickeln, wurden unterschiedlichste Parameter als Zielsetzung festgelegt. Durch komplexe Entwurfsüberlegungen wurde ein kompaktes und wirtschaftliches Gebäude entwickelt, das jedem selbstverständlich erscheint und durch seine vielfältige räumliche Verknüpfung kindliches Lernen und soziale Entwicklung im täglichen Gebrauch unterstützt und fördert.
FORM
Vielfältige Bauformen sind auf dem Grundstück grundsätzlich denkbar. Eine städtebauliche Annäherung anhand verschiedener Gebäudevolumen und Formen im Umgebungsmodell hat für uns ergeben, die vorherrschende, geometrisch einfache und rechtwinklige Gebäudeform aufzugreifen, um einen kontextuellen städtebaulichen Zusammenhalt mit der umgebenden Bebauung herzustellen. Darüber hinaus fördert dieser Ansatz eine kompakte und wirtschaftliche Lösung, mitunter die wichtigsten Parameter auf dem
Weg zur Realisierung des Bauvorhabens. Optimal ist hier eine rechteckige, annähernd quadratische Grundform.
ORT
Um die Schule in ein Spannungsfeld mit den umgebenden Gebäuden zu setzen, sollte der Baukörper in der westlichen Grundstücksecke platziert werden und damit auch die Gebäudelücke in der Abfolge Grundschule-(Leerraum)-Kinderhaus-Kletterhalle schließen. So ist das nur einseitig ausgerichtete Kinderhaus durch den Neubau nicht gestört und vor allem sind die eigenen Freibereiche und Ausblicke auf dem Grundstück dadurch uneingeschränkt. Durch die Platzierung des Gebäudes ergeben sich zwei qualitativ unterschiedliche Freibereiche. Erst durch einen möglichen zweiten Bauabschnitt kommt es zu einer absehbaren Überlagerung der Einflussbereiche beider Gebäude.
ENTREE
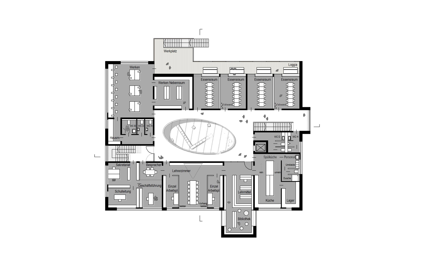
Die Lage auf dem Grundstück ermöglicht einen vorgelagerten Schulhof, welcher als Puffer und räumlicher Vermittler zwischen Erschließung und Schule funktioniert. Ein Eingang / Funktionsriegel mit den verschiedenen erforderlichen Nebennutzungen definiert den Übergang, gibt dem Hof einen Abschluss zum öffentlichen Bereich und der Schule ein bauliches Gegenüber. Die gewünschte mittelfristige Erweiterung kann an den Eingang anschließen. Die Erschließung der beiden Gebäude erfolgt dann über einen gemeinsamen Zugang an dieser Schnittstelle von Nordosten her.
KLASSEN
Das neue Montessori-Haus soll demokratisch, verortet und geerdet sein. Aus diesem Gurnd haben wir alle vier Klassenzimmer als Basis der Schule gleichberechtigt ins Erdgeschoss gelegt, ebenerdig und mit barrierefreiem Ausgang ins Freie. Durch die Anordnung der Klassenräume an den vier Ecken des Gebäudes erreicht man die gewünschte zweiseitige natürliche Belichtung eines jeden Klassenzimmers. Dies ermöglicht auch, auf den jeweiligen Sonnenstand mit der Verschattung zu reagieren und trotzdem immer noch eine offene Fensterseite zu haben.
GARTEN
Eine wichtige Verknüpfung, die durch das Konzept der Klassen im Erd- geschoss erreicht wird, ist der direkte Kontakt mit der Natur. Jedes Klassenzimmer erhält seinen eigenen Klassengarten als Erweiterung des Innenraums, als zugeordneter Projektraum im Freien. Dadurch entsteht die angestrebte Staffelung vom geschützten Klassenraum, über den Klassengarten, hin zum allgemeinen Pausenhof. Der Klassengarten besteht aus den vier Hauptelementen Klassenpergola, Hochbeet, Wassergrander und Klassenbaum.
PATIO
Der durch die Anordnung der Cluster entstehende Zwischenraum verbindet sich fließend mit den Außenbereichen aller Himmelsrichtungen und nach oben Richtung Himmel. Es entsteht ein zentraler, gemeinsamer Erschließungs- und Kommunikationsbereich, an dem alle teilhaben können. Die Aula im Erdgeschoss ist durch die intelligente Überlagerung mit den ohnehin erforderlichen Verkehrsflächen deutlich großzügiger und flexibler nutzbar. Der verdunkelbare Mehrzweckraum mit angeschlossenem Stuhl- und Materiallager kann problemlos mit der Aula zusammengeschlossen werden, was allen Nutzern vielfältige Möglichkeiten der Begegung und der Benutzung ermöglicht. Mobile Stapelkisten können diese Zone als Bühne, Sitzlandschaft, Lernbereich etc. zonieren.
BAUM
Im Herzen der Schule, dem lichten Atrium, soll der „Hofbaum" zum Erstbezug der Schule gepflanzt werden und als Projekt für die gesamte Schule, Kinder wie Erwachsene, über viele Jahre gepflegt, umsorgt und zum Wachsen gebracht werden - das gemeinschaftliche Leben symbolisieren. Er trägt zur Lufthygiene und zu einer lebendigen Atmosphäre bei und verbindet die beiden Geschosse im hohen Galerieraum als vertikales Element.
PROFIL
Das Gebäude wird an speziellen Stellen profiliert, entwickelt aus den Innenräumen und deren Verknüpfung mit dem Außenraum. Neben den bereits beschriebenen vier Pergolen im Erdgeschoss, gibt es noch vier weitere Elemente im Obergeschoss. Der große Erker über dem Eingang, der als Vordach dient und der Bibliothek einen speziellen eigenen Raum mit natürlicher Belichtung bietet. Die Haupttreppe, die ein großzügiges Podest mit Panoramafenster erhält - für einen freien Ausblick.
Die vier Essensräume, die ihren gewünschten Außenbezug durch eine eingezogene überdachte Loggia mit Aufweitung für den Werkbereich bekommen und Anschluss über eine (Flucht-)Treppe an den Garten haben. Als viertes Element die eliptische Lichtkanone über der Aula, die das geordnete System der Schule durch eine freie Form vervollständigt und zentral für die natürliche Belichtung und Belüftung (Nachtkühlung) sorgt. Innenseitig sind Sonnenschutz und Verdunkelung vorgesehen.
KONSTRUKTION & MATERIAL
Der Rohbau der Schule ist als Massiv-/Stahlbetonbau konzipiert, der aus Erfahrung bei Gebäuden dieser Größe etwas kostengünstiger ist als z.B. ein Holzbau und den weiteren Vorteil hat, dass seine große Masse das Raumklima im Sommer bei Hitze angenehm ausgleicht und auch für die gewünschte Nachtkühlung die dafür erforderliche Speichermassen bereitstellt. Das begrünte Flachdach begünstigt ebenso diese natürliche Regulierung des Raumklimas sowohl im Sommer als auch im Winter.
RAUMAKUSTIK
Wegen der konstruktiv, gestalterisch und raumklimatisch sinnvollen Materialien mit eher harten Oberflächen wie Glas, Beton, etc. sind als akustische Maßnahmen in Form von offenen Lamellendecken, sog. Baffeln vorgesehen. Diese können wo erforderlich noch durch Pinnwände, Akustikboards, Teppiche & Vorhänge, etc. ergänzt werden.
SELBSTAUSBAU
Aufgrund der Ausschreibung sind zur Darstellung der räumlichen und materialhaften Qualitäten des Entwurfs die idealen Zielvorstellungen in der Möblierung, auch des Außenraums dargestellt. Das vorgegebene Budget und vor allem die förderfähigen Kosten werden die Umsetzung vielleicht nur bedingt zulassen. Eine stufenweise Umsetzung des Entwurfs durch Eigenleistung von Eltern, Lehrern und Kindern in Kombination mit Spendenaktionen ist sehr gut vorstellbar.
Die konzipierten Überdachungen als geschützte Freibereiche vor den Klassen wären ein Beispiel dafür. Das Gebäude und die Verknüpfung von Klassenzimmer und Außenraum („grünes Klassenzimmer“) funktioniert grundsätzlich auch ohne diese wünschenswerten „Klassen-Holzboxen“.
BRANDSCHUTZ
Das Gebäude ist aufgrund seiner Nutzung ein Sonderbau und der Gebäudeklasse 3 zuzuordnen. Die Aula mit dem großen Atrium zum Obergeschoss und der offenen Treppe im Nordwesten sind bewusst nicht als notwendiger Flur, bzw. notwendiges Treppenhaus geplant um eine flexible Nutzung und Möblierung zu ermöglichen. Ebenso ist ein Zuschalten des Mehrzweckraumes brandschutzrechtlich dadurch erst möglich.Im Erdgeschoss gibt es aus allen Aufenthaltsräumen einen direkten Zugang ins Freie. Vom Obergeschoss führt der 1. Rettungsweg über das Fluchttreppenhaus im Südosten ebenfalls direkt ins Freie. Dieses ist für alle westlich orientierten Aufenthaltsräume (Küche, Bibliothek, Lehrer- & Verwaltungsbereich) auch bei verrauchter Aula über einen gesicherten Bypass erreichbar. Die östlich gelegenen Differenzierungsräume und der Werkraum flüchten direkt über die Freitreppe.
ENERGIEKONZEPT
Der Heizbedarf des Gebäudes ist durch die kompakte Bauform sehr gering und wird ca. 37 kW betragen. Eine besonders wirtschaftliche und zugleich nachhaltige Anlagenkonzeption stellt eine Aufteilung der Grundlast von ca. einem Drittel auf einen regenerativen Energieträger und die Erzeugung der Spitzenlast von ca. zwei Drittel durch einen Standardenergieträger, z.B. Erdgas, dar.
Die regenerativen Energieträger könnten neben der auszuschließenden Erdwärme die Nutzung der Umgebungswärme durch eine Luft-Wärmepumpe sein. Hier wäre jedoch eine Aufstellung der Luftwärmepumpe im Außenbereich durch die hohe Schallemissionen sehr schwierig und im Baukörper/Keller verbaut sehr kostenintensiv und daher nicht sinnvoll.
Eine weitere regenerative Quelle wäre die Kraft-Wärme-Kopplung durch ein Block-Heiz-Kraft-Werk (BHKW). Diese würde jedoch eine Mindestlaufzeit von ca. 5.000 Betriebsstunden erfordern, um wirtschaftlich zu arbeiten. Durch den sehr geringen Verbrauch von Warmbrauchwasser in einer Schule würde dies nicht erreicht. So verbleiben nur noch die Biomassevarianten. Eine Hackschnitzelanlage ist aufgrund der sehr kleinen Leistung nicht sinnvoll und würde auch im Betrieb zu viel Betreuung durch den Nutzer erfordern. Daher würden wir einen Pelletkessel zur Deckung der Grundlast vorgeschlagen.
Die verbleibende Spitzenlast wird durch eine Brennwertgastherme erzeugt. Mit dieser Leistungsaufteilung erzeugt die Biomasse ca. 70% der benötigten Jahresheizenergie und mit einer intelligente Regelung dieser Gerätekombination braucht der Pelletkessel in den Sommermonaten und Übergangszeiten bei sehr geringem Wärmebedarf nicht zwingend einschalten. Die Anlieferung der Pellets kann über den bis zum Gebäude dafür ausgebauten Fußweg, entsprechend der Anlieferung für die Küche erfolgen. Die Wärmeverteilung erfolgt über moderne Fußbodenheizflächen welche den Vorteil haben die Wärme über den Boden absolut gleichmäßig und unsichtbar zu verteilen. Für die oft am Boden arbeitenden Kinder eine sehr angenehme Wärme.
LÜFTUNG/NACHTKÜHLUNG
Das Lüftungskonzept ist gemäß der Auslobung sehr reduziert gestaltet und damit auch sehr kostengünstig im Betrieb. Alle Räume mit Außenwand sind über die Fenster natürlich belüftbar. Somit ist hier keine mechanische Lüftung notwendig. Nur innen liegende Räume wie WCs und Küche müssen mechanisch be- und entlüftet werden.
Die Gesamtgröße der Lüftungsanlage liegt hier nur bei ca. 2.500 m³/h. Dabei kann die Wärmerückgewinnung in der Küche direkt durch die Dunstabzugshaube erfolgen und bei den Sanitärräumen durch moderne Mini-Rotationswärmetauscher mit Spüllufttechnik zur Vermeidung von Geruchsübertragungen. Damit kann aufgrund des hohen Wirkungsgrades in Abstimmung mit dem Nutzer vielleicht sogar auf einen Heizungsanschluss der Lüftungsanlage verzichtet werden.
Im Sommerfall erfolgt die Nachtauskühlung über manuell öffenbare Lüftungsflügel in den Außenwänden der Klassenzimmer durch Überströmung in das Atrium der Aula und hier weiter angetrieben durch die höhenunterschiedsausgelöste Thermik über elektrisch öffenbare Dachfenster mit Regenwächter wieder nach außen. Die Bedienung der Lüftungsflügel erfolgt durch den Nutzer manuell und durch den Kühlerfolg über Nacht auch freiwillig und zunehmend zuverlässig. Dieses sehr einfache und wirkungsvolle System wird in zunehmenden Maße auch bei öffentlichen Gebäuden mit eingewiesenem Nutzerkreis realisiert.
WASSERVERSORGUNG
Die Versorgung der Sanitärbereiche und der Küche mit Trinkkaltwasser erfolgt über ein durchgeschleiftes Rohrleitungsnetz mit dem Endpunkt der am häufigsten genutzten Toilette. Die vorgeschriebene Hygienespülung kann über eine Handlungsanweisung manuell an dieser Stelle nach jeder Unterrichtunterbrechung durchgeführt werden. Eine automatische Spüleinrichtung ist nicht zwingend notwendig, diese führt in vielen Fällen zu unnötig hohem Wasser- verbrauch. Zur Vermeidung eines Trinkwarmwassernetzes mit hohem hygienischen Gefahrenpotentials und aufgrund des sehr geringen Bedarfs erfolgt die Warmwassererzeugung dezentral über elektrische Durchlauferhitzer.
