Fuchsstuben
Umfang Umbau, Sanierung
Ort Burghausen
Leistung Innenarchitektur, Möbeldesign, Leistungsphasen 1-8
Status gebaut
Ausführungszeitraum 2009
Bauherr Hannes Beck
Größe 220 m²
Auszeichnungen Architektouren 2011, BDIA Jahrbuch 2012
Fotos Antje Hanebeck, München

Konzept
Im Juli 2009 wurde in der historischen Altstadt von Burghausen ein liebevoll renoviertes Lokal, „die Fuchsstuben“, wieder eröffnet.
Mit dem Umbau hat der architekturinteressierte Eigentümer, Hannes Beck, einen bewundernswerten Spagat zwischen Geschichte und Moderne geschaffen.
In seinem Auftrag hat das „studio lot“ aus Altötting, ein Büro für Architektur und Innenarchitektur, sich der Aufgabe angenommen, die 80er-Jahre Atmosphäre der Innenräume mit anspruchsvolle Innenarchitektur zu modernisieren. Die Innen-/Architekten begnügten sich dabei nicht damit die Räume neu zu möblieren, sondern griffen auch baulich in die Struktur ein und entwickelten ein thematisch den Namen aufgreifendes Konzept für die Innenraumgestaltung.
Inspiriert vom Namen „Fuchsstuben“ ergänzen grafische Darstellungen von Fuchs, Hase und Jäger den Entwurf. Diese sind als Silhouetten charmant auf Möbeln, Wänden und Türen platziert und laden den Besucher auf eine kleine „Jagd“ ein, bei der es gilt möglichst viele Motive zu entdecken.
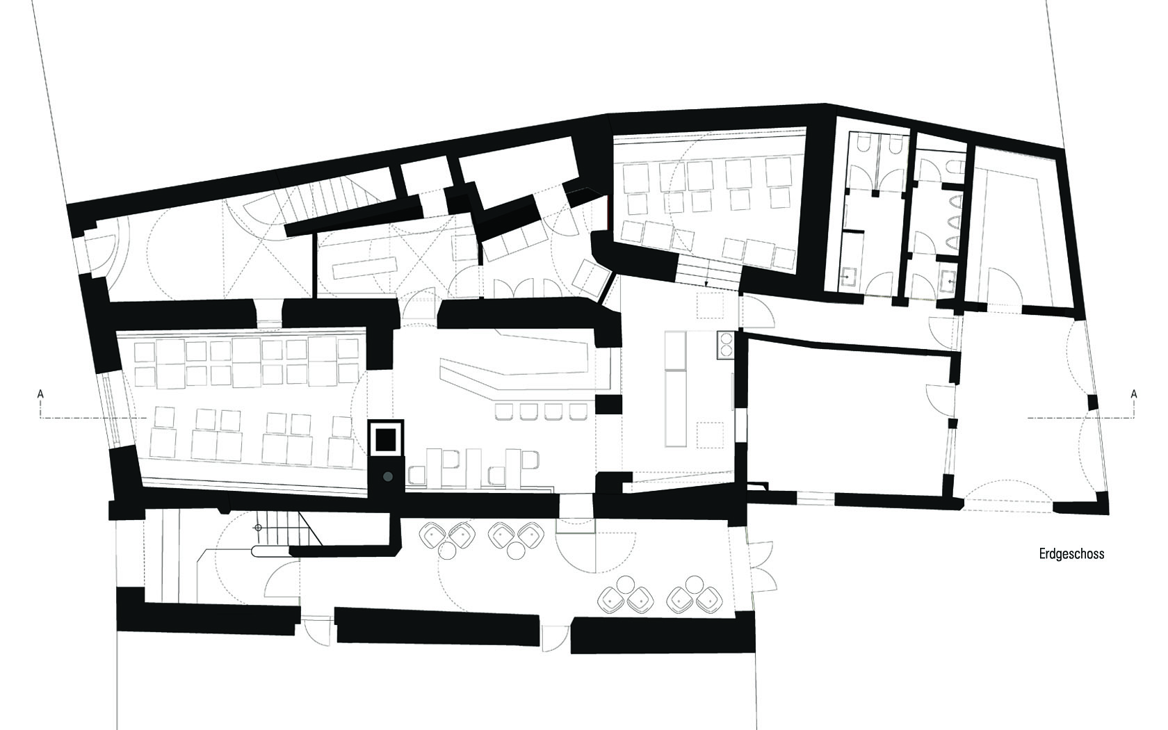
In der Eingangszone weist ein erstes, großformatiges Waldmotiv den Gästen den Weg ins Restaurant und auf die Bar zu. Verlegt in den Eingangsbereich ist die Bar nun zentraler Empfangs- und Treffpunkt, der ergänzt durch Stehtische hohe Aufenthaltsqualität besitzt. Die bisher als Lager genutzten mittelalterlichen Gewölbe rechter Hand wurden in den Aufenthaltsbereich der Gäste integriert. Auf dem Weg in den gemütlichen „Fuchsbau“, den kleineren Gastraum, strukturiert ein multifunktionales Garderobenmöbel den Raum und definiert zugleich rückseitig den neu angelegten, großzügigen Servicebereich. Zurück an der Bar fällt der Blick nun geradlinig in den größeren der beiden Gasträume, die „Fuchsstube“, während im Gewölbe hinter der Bar ein zusätzliches Schaulager für die umfangreiche Weinsammlung geschaffen wurde. Immer wieder stößt man auf seinem Weg durch das Restaurant hierbei auf die Grafiken von Natur und Jagd, sei es der lebensgroße Jäger auf dem Garderobenmöbel, der Fuchs an der Bar oder die versteckten Rehe zwischen den Tischen. Durchgehend mit schlichten, massiven Eichenmöbel möbliert, die aus dem Eichendielenboden und der hochgezogenen Wandverkleidung herauszuwaschen scheinen, wird auch in der Materialität auf den Naturbezug eingegangen.
Das dezente Licht steht in spannungswollen Kontrast zur dominierenden Farbe des Restaurants, dem Fuchsrot und schafft eine Atmosphäre zum Wohlfühlen und Verweilen.
